Forum modelarskie RC , projektowanie CAD

forum.aerodesignworks.eu
Dzisiaj jest 16 lis 2025, o 07:34

Strefa czasowa UTC+2godz.




Nowy temat Odpowiedz w temacie  [ Posty: 48 ]  Przejdź na stronę Poprzednia  1, 2, 3, 4, 5  Następna
Autor Wiadomość
Post: 2 sie 2021, o 10:19 
Offline
Administrator
Awatar użytkownika

Rejestracja: 22 sie 2011, o 22:39
Posty: 3842
Lokalizacja: Elbląg
No dobra ;) . Płacik już zasadniczo narysowany. Elementy powyciągane, zostało posegregować i ułożyć na formatkach. Mam jeszcze kilka niejasności, ale kwestią dni jest ich rozwikłanie. Rozwiązałem również problem spięcia płatów aby się nie rozjechały na wieżyczce, napiszę o tym później. Nie ruszyłem jeszcze sk i zastrzałów - tu będzie problem :? - ale tych parę kresek uda się chyba szybko postawić. Co by nie pisać, projektowanie/rysowanie, wchodzi w decydującą fazę. Poniżej zrzut z cada na skrzydełko, lotka będzie budowana osobno /cięciwa 80 mm :shock: /.


Załączniki:
Sroka 6.jpg
Sroka 6.jpg [ 85.87 KiB | Przeglądany 16526 razy ]

_________________
https://gliders.pl/ Szybowce są najfajniejsze....
SAM 18-007
pozdrawiam
milo
Na górę
 Wyświetl profil  
 
Post: 2 sie 2021, o 10:27 
Offline
Administrator
Awatar użytkownika

Rejestracja: 12 lip 2014, o 07:56
Posty: 1773
Lokalizacja: Gdańsk
milo pisze:
Poniżej zrzut z cada na skrzydełko, lotka będzie budowana osobno /cięciwa 80 mm :shock: /.


Czemu chcesz lotkę budować osobno ?
Nie będzie łatwiej, ją zwyczajnie odciąć ?

_________________
Nic tak nie cieszy, jak własny szybowiec :D
____________SAM 18-025_____________
https://gliders.pl


Na górę
 Wyświetl profil  
 
Post: 2 sie 2021, o 11:32 
Offline
Administrator
Awatar użytkownika

Rejestracja: 22 sie 2011, o 22:39
Posty: 3842
Lokalizacja: Elbląg
mgr pisze:
Nie będzie łatwiej, ją zwyczajnie odciąć ?

Moim zdaniem tak będzie łatwiej ;) Zaprojektowałem dźwigarek lotkowy w płacie z wyciętymi otworami pod zawiasy. Podobnie w lotce. Odpada trasowanie i wycinanie otworów /tego chyba najbardziej nie lubię :lol: /, no i szlifowanie obu krawędzi, zawsze coś się popie...., popsuje :lol: . No zobaczymy, wszystko okaże się po rozpoczęciu budowy :) .

_________________
https://gliders.pl/ Szybowce są najfajniejsze....
SAM 18-007
pozdrawiam
milo


Na górę
 Wyświetl profil  
 
Post: 4 sie 2021, o 16:53 
Offline
Administrator
Awatar użytkownika

Rejestracja: 22 sie 2011, o 22:39
Posty: 3842
Lokalizacja: Elbląg
Po porównaniu skanów z org dokumentacji okazało się, że były dwa rodzaje lotek. Długo debatowaliśmy z jednym z kolegów i oto co ustaliśmy. Podstawą ustaleń była w/w dokumentacja i opis konstrukcji Pana Glassa oraz dostępne zdjęcia.
Pierwsze egzemplarze miały lotki typu "Frise", po wypadku zaczęto zmieniać na szczelinowe/tradycyjne. Lotka pierwsza sięgała do końca płata, szczelinowa tak jak na grafice w poprzednim poście. Oczywiście zdajemy sobie sprawę, że chyba to nie było regułą ale na to wskazują zdjęcia. Czyli jest wybór. Finalnie płaty w moim projekcie będą mogły być wykonane w obu wersjach. Lekkie spowolnienie rysowania, przekonałem się jak istotna jest wymiana dokumentacji przed rysowaniem modelu. Kolega miał skan planów płata z "długą lotką" ja z "krótszą" :D . Poniżej porównanie obu wersji.


Załączniki:
Sroka 7.jpg
Sroka 7.jpg [ 79.33 KiB | Przeglądany 16470 razy ]

_________________
https://gliders.pl/ Szybowce są najfajniejsze....
SAM 18-007
pozdrawiam
milo
Na górę
 Wyświetl profil  
 
Post: 5 sie 2021, o 13:12 
Offline
Administrator
Awatar użytkownika

Rejestracja: 22 sie 2011, o 22:39
Posty: 3842
Lokalizacja: Elbląg
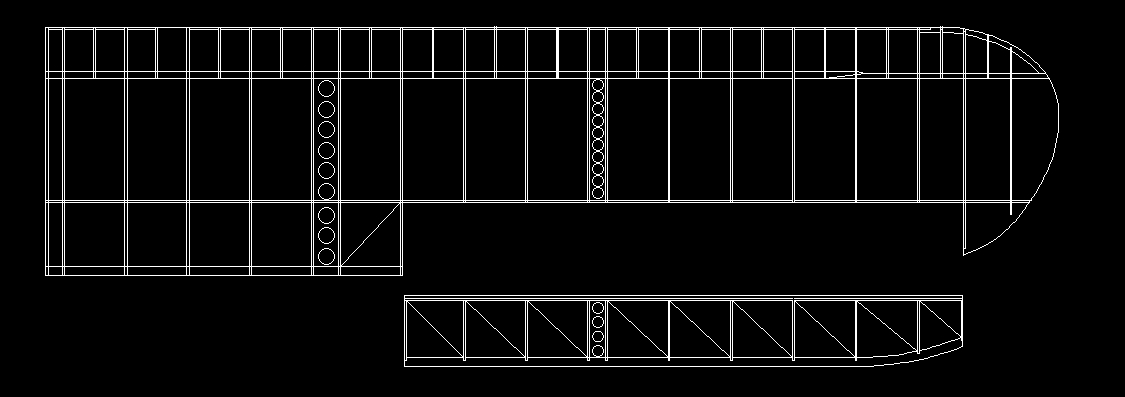
Skrzydło już na formatkach. Trochę tego jest, nominalnie:6 desek balsy 2 mm, 2 deski balsy 3 mm i parę elementów na balsosklejce 3 mm i sklejce lotn 3 mm, kawałek sklejki 2 mm. Zobaczę, może też jeszcze będą części ze sklejki 0,6 mm. Wszystko zależy jak laser wytnie ;) . Dzisiaj siadam do rozkładania kadłuba i poziomego.


Załączniki:
Sroka 8.jpg
Sroka 8.jpg [ 166.53 KiB | Przeglądany 16440 razy ]

_________________
https://gliders.pl/ Szybowce są najfajniejsze....
SAM 18-007
pozdrawiam
milo
Na górę
 Wyświetl profil  
 
Post: 7 sie 2021, o 22:05 
Offline
Administrator
Awatar użytkownika

Rejestracja: 22 sie 2011, o 22:39
Posty: 3842
Lokalizacja: Elbląg
Model skończony. W przyszłym tygodniu oddaję do cięcia. Trochę tego jest: 6 desek balsy 2 mm, 2 trójki, dwa arkusze sklejki 3 mm /510x310/, arkusz i kawałek balsosklejki 3 mm, poważnie, w kontekście totalnych braków balsy w sklepach, wyczyści mój magazynek :( . Chyba trzeba przerzucić się na inne materiały.


Załączniki:
Sroka 9.jpg
Sroka 9.jpg [ 191.66 KiB | Przeglądany 16369 razy ]

_________________
https://gliders.pl/ Szybowce są najfajniejsze....
SAM 18-007
pozdrawiam
milo
Na górę
 Wyświetl profil  
 
Post: 9 sie 2021, o 21:30 
Offline
Administrator
Awatar użytkownika

Rejestracja: 22 sie 2011, o 22:39
Posty: 3842
Lokalizacja: Elbląg
Sklejka już do mnie jedzie, przygotowuję formatki do cięcia :D . Tak na rozgrzewkę zdjęcia udostępnione mi przez jednego z kolegów, Sroka trochę większa od mojej /skala 1:3.5/, kilka dni temu oblatana. Piękny model, nieskromnie tylko wspomnę, że wykonywałem do niej szablony oznaczeń :oops: .


Załączniki:
IMG_0020.jpg
IMG_0020.jpg [ 125.6 KiB | Przeglądany 16325 razy ]
IMG_0026.jpg
IMG_0026.jpg [ 60.95 KiB | Przeglądany 16325 razy ]
IMG_0134adw.jpg
IMG_0134adw.jpg [ 50.38 KiB | Przeglądany 16325 razy ]
IMG_0158.jpg
IMG_0158.jpg [ 211.7 KiB | Przeglądany 16325 razy ]
IMG_0161.jpg
IMG_0161.jpg [ 174.11 KiB | Przeglądany 16325 razy ]
IMG_0159adw.jpg
IMG_0159adw.jpg [ 175.9 KiB | Przeglądany 16325 razy ]

_________________
https://gliders.pl/ Szybowce są najfajniejsze....
SAM 18-007
pozdrawiam
milo
Na górę
 Wyświetl profil  
 
Post: 11 sie 2021, o 11:39 
Offline
Administrator
Awatar użytkownika

Rejestracja: 22 sie 2011, o 22:39
Posty: 3842
Lokalizacja: Elbląg
Dzisiaj zawiozłem materiał do cięcia. Mam obiecane, że w przyszłym tygodniu będzie do odbioru ;) . Zobaczymy.
Można powiedzieć, że 1 etap mam za sobą..... ciekawe ile baboli zrobiłem w projekcie :lol: .
Jeżeli ktoś byłby zainteresowany to podaję wstępny wykaz materiałów potrzebnych do budowy.
Balsa:
1. Deska 2 mm 5 szt
2. Deska 3 mm 2 szt
Sklejka lotnicza:
1. Arkusz 3 mm 310x510 2 szt
2. Arkusz 2 mm 150x150 1 szt
3. Arkusz 0.6 mm 250x350 1 szt
Balsosklejka:
1. Arkusz 500x1000 1 szt
2. Arkusz 500x300 1szt
Listwy sosnowe /1000 mm długości/:
1. Listwa 2x2 2 szt
2. Listwa 3x1 4 szt
3. Listwa 3x3 3 szt
4. Listwa 5x2 14 szt
5. Listwa 5x3 2 szt
6. Listwa 8x2 2 szt
7. Listwa 8x3 4 szt
8. Listwa 10x1 2 szt
Ilości orientacyjne, minimalne. Do tego sklejka 0,4 i 0,6 mm na pokrycie modelu. Oczywiście jakieś pręty, rurki, kawałki balsy i listewek tak jak przy każdym modelu. Mam już wytoczone tuleje na obsadę statecznika poziomego. Inne elementy z blachy stalowej /okucia zastrzałów i płozy/ muszę je jeszcze rozrysować , będą dostępne u mnie, będą wycięte na laserze lub waterjetem.
Wszystko opiszę, mam nadzieję, skrupulatnie w relacji z budowy.

_________________
https://gliders.pl/ Szybowce są najfajniejsze....
SAM 18-007
pozdrawiam
milo


Na górę
 Wyświetl profil  
 
Post: 16 sie 2021, o 21:39 
Offline
Administrator
Awatar użytkownika

Rejestracja: 22 sie 2011, o 22:39
Posty: 3842
Lokalizacja: Elbląg
W oczekiwaniu na telefonik /wycięte formatki Sroki :D / od mojego operatora plotera laserowego, mam nadzieję w tym tygodniu ;) , narysowałem elementy do mocowania płozy kadłubowej. Będą wycięte na waterjecie lub laserze z blaszki stalowej grubości 1 mm, a może 0,8, zobaczę co znajdę. Być może jeszcze dojdą części do zastrzałów, na razie zastanawiam się jak to rozwiązać. Przygotowałem plik szablonu do lamelowania płozy kadłubowej. Szablony będą frezowane, mój operator plotera laserowego ma również w swoim warsztacie frezarkę, ze sklejki grubości 20 mm. Elementy blaszane jak i wylamelowana płoza będą u mnie do dostania.


Załączniki:
Sroka 10.jpg
Sroka 10.jpg [ 57.04 KiB | Przeglądany 16195 razy ]
Sroka 11.jpg
Sroka 11.jpg [ 35.98 KiB | Przeglądany 16195 razy ]

_________________
https://gliders.pl/ Szybowce są najfajniejsze....
SAM 18-007
pozdrawiam
milo
Na górę
 Wyświetl profil  
 
Post: 25 sie 2021, o 12:33 
Offline
Administrator
Awatar użytkownika

Rejestracja: 22 sie 2011, o 22:39
Posty: 3842
Lokalizacja: Elbląg
Odebrałem wycięty model/formatki :D . No to jedziemy z tematem :lol: .


Załączniki:
DSCN5864.jpg
DSCN5864.jpg [ 166.98 KiB | Przeglądany 16094 razy ]
DSCN5865.jpg
DSCN5865.jpg [ 184.41 KiB | Przeglądany 16094 razy ]

_________________
https://gliders.pl/ Szybowce są najfajniejsze....
SAM 18-007
pozdrawiam
milo
Na górę
 Wyświetl profil  
 
Wyświetl posty nie starsze niż:  Sortuj wg  
Nowy temat Odpowiedz w temacie  [ Posty: 48 ]  Przejdź na stronę Poprzednia  1, 2, 3, 4, 5  Następna

Strefa czasowa UTC+2godz.


Kto jest online

Użytkownicy przeglądający to forum: Obecnie na forum nie ma żadnego zarejestrowanego użytkownika i 1 gość


Nie możesz tworzyć nowych tematów
Nie możesz odpowiadać w tematach
Nie możesz zmieniać swoich postów
Nie możesz usuwać swoich postów
Nie możesz dodawać załączników

Szukaj:
Przejdź do:  
Technologię dostarcza phpBB® Forum Software © phpBB Group